Купить котел КВм 2.0 с ТШПМ в Кургане

  • Модель с механической топкой с шурующей планкой ТШПМ
  • Работа на каменном и буром угле повышенной влажности
  • Полностью автоматизированная работа – подача и равномерное распределение топлива, механическое золоудаление, контроль температуры и давления, контроль перегрузки планки
  • Надежная работа котла обеспечивается изготовлением трубной системы из трубы сталь 10 повышенной прочности
  • Удобные люки для очистки поверхностей нагрева
Цена с НДС:
1 742 000 рублей
Цена с НДС на котел КВм 2.0 с ТШПМ с доставкой в
от 1 742 000 рублей
Условия в
В наличии на складе
Доставка ТК по России и Казахстану
Безналичный расчет
Есть в наличии
Можно купить в лизинг
Котел КВм 2.0 ТШПМ
Котел КВм 2.0 с ТШПМ
Котел КВм с топкой ТШПМ 2.0 МВт
Котел КВм 2.0 МВт с топкой ТШПМ
Котел КВм 2.0 с шурующей планкой ТШПМ изготовление
Изготовление котла КВм 2.0 с шурующей планкой ТШПМ
Котел КВм 2.0 с ТШПМ изготовление
Изготовление котла КВм 2.0 с ТШПМ
Котел КВм 2.0 с ТШПМ производство
Производство котла КВм 2.0 с ТШПМ
Котел КВм 2.0 ТШПМ
Котел КВм с топкой ТШПМ 2.0 МВт
Котел КВм 2.0 с шурующей планкой ТШПМ изготовление
Котел КВм 2.0 с ТШПМ изготовление
Котел КВм 2.0 с ТШПМ производство
Видеообзор
Вид топки ТШПМ, Механическая
Максимальная тепловая мощность 2 МВт
Топливо Твердое, Уголь
Отапливаемая площадь от 16700 до 21900 м²
Технические
характеристики
Описание
товара
Комплект
поставки
Дополнительно
потребуется
Схема
подключения
Сертификаты
и гарантии
Подбор
котла

Технические характеристики котла КВм 2.0 с ТШПМ

Тип Котел КВм
Тип отопительного котла Твердотопливный
Бренд HeatExpert
Вид топки ТШПМ, Механическая
Марка топки ТШПМ-2.0
Максимальная тепловая мощность 2 МВт
Максимальная тепловая мощность 2000 кВт
Максимальная тепловая мощность 1.72 Гкал
Диапазон регулирования мощности 50-100 %
Топливо Твердое, Уголь
Низшая теплота сгорания проектного топлива 5230 кКал/кг
КПД котла на УГЛЕ 80 %
Расход УГЛЯ среднечасовой за отопительный сезон 225 кг/ч
Расход УГЛЯ при максимальной нагрузке котла 393 кг/ч
Расход условного топлива 294 кг/ч
Максимальная температура воды на выходе из котла 115 °C
Минимальная температура воды на входе в котел 55 °C
Давление воды, не более 0.3-0.6 (3-6) МПа (кгс/см²)
Номинальный расход теплоносителя 68 м³/ч
Расход теплоносителя через котел min-max 55-85 м³/ч
Гидравлическое сопротивление при номинальном расходе не более 0.07 (0.7) МПа (кгс/cм²)
Аэродинамическое сопротивление 200 (20) Па (мм. вод. ст.)
Разряжение в топочной камере 20-40 (2-4) Па (мм. вод. ст.)
Объем уходящих газов 8600 м³/ч
Температура уходящих газов, не более 220 °C
Тяга Уравновешенная
Водяной объем котла 1600 л
Объем топочной камеры 4.5 м³
Активная площадь решетки горения 1.75 м²
Присоединительные размеры по водяному тракту 125 Ду
Присоединительные размеры газохода уходящих газов, ширина*высота / сечение 1200х320 / 0.39 мм/м²
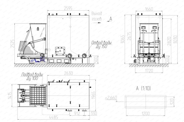
Габаритные размеры блока, длина*ширина*высота 2630х1965х2675 мм
Габаритные размеры установки, длина*ширина*высота 4485х1965х3065 мм
Масса 6200 кг
Вид Водогрейный
Конструкция котла водотрубная, газоплотная
Количество контуров Одноконтурный
Размещение Напольный
Тип камеры сгорания Открытый
Управление Электронное
Принцип работы твердотопливного котла Классический
Энергонезависимый Нет
Тип питания Трехфазное
Встроенный циркуляционный насос Нет
Встроенный расширительный бак Нет
Марка HeatExpert
Энергоэффективность Высокая
Отапливаемая площадь от 16700 до 21900 м²
Отапливаемый объем от 50000 до 65700 м³
Котел КВм 2.0 с ТШПМ чертеж
Чертеж котла КВм 2.0 с ТШПМ

Механический котел КВм 2.0 МВт с топкой ТШПМ в Кургане

Российский котел КВм с топкой ТШПМ мощностью 2.0 МВт предназначен для отопления и горячего водоснабжения жилых и административных зданий, больших промышленных помещений и производственных предприятий, работает с принудительной циркуляцией теплоносителя в закрытых и в открытых системах теплоснабжения.

Промышленный отопительный котел 2.0 МВт ТШПМ с механической регулировкой обеспечивает подогрев воды температурой до 95-115 °С, с рабочим давлением 0,3-0,6 (3,0-6,0) МПа (кгс/см). Площадь отапливаемого помещения 16700 – 21900 м2.

Принцип работы механического котла КВм 2.0 МВт с топкой с шурующей планкой ТШПМ

Водогрейный твердотопливный котел 2.0 МВт ТШПМ с шурующей планкой производит полностью механизированную подачу топлива и удаление шлака. Транспортером топливо подается в бункер топки. Шурующая планка обеспечивает шурование и равномерное распределение топлива по колосниковой решетке, предотвращает спекание топлива. Воздух подается под колосниковую решетку вентилятором.

Дымовые газы через окно расположенное на задней стенке топки выходят из топочной камеры. Пройдя две конвективные ступени, дымовые газы выводятся в выходное окно на задней стенке котла. Для очистки конвективных поверхностей нагрева от сажистых и золовых отложений в обшивке котла предусмотрены удобные люки.

Образующиеся зола и шлак с колосниковой решетки удаляется за счет движения шурующей планки в канал золоудаления.

Мощность топки регулируется изменением интервала между циклами хода шурующей планки.

Котельный блок

Водонагревательный автоматический котел КВм 2.0 МВт с ТШПМ на угле выполняется из двух блоков – котельный блок и топка с шурующей планкой ТШПМ.

Котельный блок представляет собой гладкотрубную горизонтальную стальную конструкцию, состоящую из трубной системы и каркаса с теплоизоляционными материалами, обшитого листовой сталью. Топочная часть выполняется из газоплотных водотрубных экранов, а конвективная состоит из сварных конвективных панелей и параллельно установленных в шахматном порядке труб. Сбоку котельного блока устанавливаются топочные дверки для контроля топочного процесса и обслуживания топки ТШПМ.

Топочная часть

Водогрейный угольный котел КВм 2.0 с механической топкой ШП изготавливается с большим объемом топочной камеры, что позволяет полностью прогорать топливу, без выноса золы в конвективную часть и дымовую трубу. Газоплотное исполнение топки исключает утечку дымовых газов в котельный зал. Развитая поверхность нагрева котла, снижает температуру уходящих газов до 200-180 °С, тем самым максимально уменьшая теплопотери. Качественная теплоизоляция исключает присосы холодного воздуха. При помощи шурующей планки зола и шлак сбрасывается в канал золоудаления.

Топка ТШПМ

Механическая топка ТШПМ выполнена с беспровальной водоохлаждаемой решеткой и водоохлаждаемой шурующей планкой.

Решетка представляет собой ряд труб, по которым течет вода, охлаждая конструкцию изнутри. Между труб вварены металлические полосы с небольшими отверстиями. Отверстия служат для подачи воздуха в горящий слой, при этом их размер не дает провалиться топливу, а постоянно поступающий воздух предотвращает их забивание.

Шурующая планка предназначена для равномерного распределения топлива по решетке, шурования и сброса шлака.

Зональное деление топки на три зоны: сушки и прогрева, активного горения, охлаждения и сброса, позволяет работать с топливом повышенной влажности без снижения температуры газов.

Конвективные поверхности нагрева

Трубы в конвективной части располагаются в шахматном порядке. Это обеспечивает более интенсивное и полное омывание труб горячими газами. Газы в конвективной части проходят два хода и выходят через газоход в верхней части задней стенки агрегата.

Промышленный нагревательный автоматический котел КВм 2 0 МВт с топкой ТШПМ имеет развитую конвективную часть, которая снижает температуру уходящих газов из котла до 200 -180 °С. Значительное снижение температуры уходящих газов исключает теплопотери, тем самым обеспечивая значительную экономию топлива.

Конвективную часть можно рассматривать как экономайзер. Гидравлическая схема наших котлов позволяет использовать принцип противотока, передавая тепло уходящих газов теплоносителю.

Трубная система имеет множество перегородок, для увеличения скорости воды в котле и исключения застойных зон и локального перегрева поверхностей нагрева. Кроме того, турбулизация водяного потока препятствует образованию пристенного кипения и отложения накипи на поверхностях нагрева. А многоходовая циркуляция позволяет избежать неравномерного прогрева котла. Твердотопливные водонагревательные механические котлы 2.0 МВт ТШПМ работают с принудительной циркуляцией теплоносителя, которую обеспечивает сетевой насос.

Качественная изоляция

Стальной отопительный котел КВм 2,0 МВт с ТШПМ на твердом топливе выполнен со съемной, облегченной изоляцией из плит ПТЭ. Плиты закрепляются на каркасе, обшивка теплоагрегата выполняется из стальных листов. Преимущества легкой изоляции - максимальная монтажная готовность котельного блока, его компактность, минимизация потерь КПД котла через потери тепла в окружающую среду, за счет высокого качества обмуровки.

Монтаж и комплектация

Цена на отечественный механический котел КВм 2.0 МВт с ТШПМ для отопления включает котельный блок, топку, шурующую планку, вентилятор поддува, вентили, предохранительные клапаны, термометры, манометры, трехходовые краны, паспорт и инструкцию по эксплуатации. Котлоагрегат поставляется блоками максимальной заводской готовности.

Стационарный водогрейный котел 2,0 МВт с топкой с шурующей планкой ТШПМ устанавливается в котельной на специально подготовленную ровную поверхность и закрепляется анкерными болтами. Далее подсоединяется по воде, устанавливается запорная арматура на подводящем и отводящем трубопроводе, устанавливаются предохранительные клапаны, дренажи, воздушники и контрольно измерительные приборы. В воздушный короб по месту врезается вентилятор, монтируется газоход.

Купить котел КВм 2.0 МВт с ТШПМ

Для того, что бы купить механический котел 2.0 МВт с топкой ТШПМ в Кургане вы можете сделать заявку в отдел сбыта по телефону 8-800-700-06-43, либо оформить заявку . Менеджеры дадут консультацию по подбору вспомогательного оборудования для выбранных вами моделей и рассчитают стоимость доставки. Транспортирование котлоагрегата и вспомогательного оборудования может осуществляться автотранспортом, ж/д полувагонами и речным транспортом.

Цена водогрейного котла КВм 2.0 с ТШПМ включает в себя запорную арматуру и КИП в пределах котла, вентилятор поддува и предохранительные клапаны. Ниже приведена подробная информация.

Для эффективной и надежной работы котла КВм 2.0 с ТШПМ вам потребуется дополнительное оборудование - автоматика, дымосос, золоуловитель, насос сетевой и подпиточный, газоходы и переходники для газового тракта, дымовая труба. Мы предлагаем рассмотреть типовые варианты комплектации. В случае если у вас на объекте имеется насосное и тягодутьевое оборудование, мы можем проверить совместимость котла КВм 2.0 с ТШПМ нашего производства и вашего оборудования. Можем изготовить нестандартные узлы для выполнения быстрого монтажа котла - газоходы и узлы обвязки. Типовую схему монтажа котла вы можете посмотреть во вкладке схемы подключения.

Щит топки ТШПМ
Щит управления топки ТШПМ
190000 руб. с НДС

Функциональные возможности щита топки с механическим котлом обеспечивают:

  • ручной пуск и автоматическую остановку котла КВм с ТШПМ;
  • автоматическое поддержание температуры путем управления (включения, выключения) вентилятора, подающего воздух для горения;
  • автоматическое управление работой шурующей планки по предварительно заданному интервалу времени между ходами планки.

Аварийная остановка котла КВм с индикацией причины аварии и подачей звукового сигнала при:

  • заклинивание привода топки (шурующей планки);
  • понижении и повышении давления на выходе из котла;
  • повышении температуры на выходе из котла;
  • уменьшении расхода воды через котел;
  • уменьшении разрежения в топке.
TD насос
Насос TD80-32G2 (11 кВт)
335200 руб. с НДС
CHL насос
Насос CHL8-30 (1.1 кВт)
106100 руб. с НДС
ДН 8 дымосос
Дымосос ДН 8/1500
214500 руб. с НДС
Золоуловитель ЗУ 2.15
Золоуловитель 2,15
100000 руб. с НДС
  • Компактный золоуловитель для твердотопливных котлов
  • Может устанавливаться как сразу за котлом, так и на улице
  • Универсальная конструкция позволяет организовать выход справа или слева, в зависимости от компоновки газоходов
ДН 9 дымосос
Дымосос ДН 9/1500
227500 руб. с НДС
ВДП 15 дробилка
Дробилка ВДП-15
1007000 руб. с НДС
Транспортер ТС
Транспортеры УСШ
1150000 руб. с НДС

Скребковый цепной транспортер удаления золы и шлака из под котлов за пределы котельной.

Водогрейный стальной отопительный котел КВм 2.0 с ТШПМ, предназначен для получения горячей воды номинальной температурой на выходе из котла от 95 до 115 °С рабочим давлением до 0,6 (6,0) МПа (кгс/см), используемой в системах централизованного теплоснабжения на нужды отопления, горячего водоснабжения. Устанавливается в производственных, промышленных и отопительных котельных.

Монтаж и подключение котла КВм 2.0 с ТШПМ

План расстановки котельного оборудования, трубопроводов и дымоходов в механизированной котельной

Для правильного подключения котла КВм 2.0 с ТШПМ в механизированной котельной необходимо оставить проемы для обслуживания оборудования во время эксплуатации. Эти расстояния рекомендованы СНИП II-35-76. На данной схеме представлены их размеры. Кроме того мы составили примерный план, как можно произвести расположение подключение оборудования, а также указали перечень минимально необходимого вспомогательного оборудования для работы механического котла. К вспомогательному оборудованию при работе котла относятся - щит управления котлом, насос циркуляционный, насос подпиточной воды, бак запаса воды, расширительный мембранный бак, дымовая труба и дымосос, золоуловитель (по желанию), транспортер топливодачи и золошлакоудаления.
В случае если подпиточная вода не соответствует по своим характеристикам требованиям к питательной воде, необходимо предусмотреть систему водоподготовки котловой воды. Водоподготовка всегда подбирается на основе химического анализа питательной воды объекте.
Для котельных 1 категории, являющихся единственным источником тепла системы теплоснабжения и обеспечивающих потребителей первой категории, не имеющих индивидуальных резервных источников тепла, необходимо предусмотреть полное резервирование оборудования - котлов, насосов, ТДМ. Пунктиром обозначено оборудование для резервирования.
Для котельных 2 категории, включающие в себя промышленные и производственные котельные резервирование нужно предусматривать по необходимости.

Аэродинамическая схема

Аэродинамическая схема котла механического

Воздух в механический котел КВм 2.0 с ТШПМ подается вентилятором поддува через топочный короб под слой твердого топлива для обеспечения горения. На боковой панели топки котла имеется пробоотборочный штуцер для подключения манометра и тягонапорометра.
Автоматика котла по данным тягонапорометра производит контроль разряжения в топочной камере, блокируя работу вентилятора в случае снижения разряжения в топочной камере, и исключая выбивание дымовых газов из топки в котельный зал. Из топки дымовые газы поступают в первый конвективный пакет, разворачиваются в поворотном коробе и через второй конвективный пакет выходят в газоходы котельной.
Для ручной регулировки тяги и дутья и режимов горения угля в комплекте котла предусмотрены шиберы. Шибер на воздуховоде подачи в топочный короб регулирует количество воздуха подаваемого вентилятором. Шибер на выходе из котла позволяет произвести отключение котла от общей магистрали газоходов котельной, а также регулировку тяги, создаваемой дымососом.

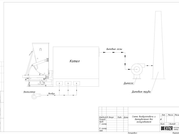
Схема подключения котла без золоуловителя

Схема котла без золоуловителя

В случае, если степень очистки дымовых газов высокая не требуется, можно установить котел КВм 2.0 с ТШПМ без золоуловителя. Схема подключения при этом следующая - дымовые газы выходят из котла в газоходы котельной, затем в дымосос и далее снова по газоходам в дымовую трубу. В зависимости от компоновки котельной дымосос может устанавливаться как в котельной, так и на улице. Наш завод производит газоходы и переходники к ним. Получив схему вашей котельной мы можем изготовить для вас комплект газоходов, переходников нужных размеров и сечений. На месте такие детали собираются как конструктор. Обращаем ваше внимание, что газоходы требуют изоляции, для защиты персонала от ожогов, так как уходящие газы имеют высокую температуру, а на улице газоходы требуют изоляции для избежания образования конденсата.

Схема подключения с золоуловителем

Схема {{parts_subject_r}} с золоуловителем

Золоуловитель для твердотопливного механического котла КВм 2.0 с ТШПМ обычно требуется устанавливать в котельных расположенных в жилой зоне. Они позволяют произвести дополнительную очистку дымовых газов перед их выбросом в атмосферу. Золоуловители нашего завода могут устанавливаться как сразу за котлом, так и снаружи котельной. Кроме очистки воздуха золоуловители увеличивают сопротивление в газовом тракте, поэтому при их установке требуется дымосос большей мощности.

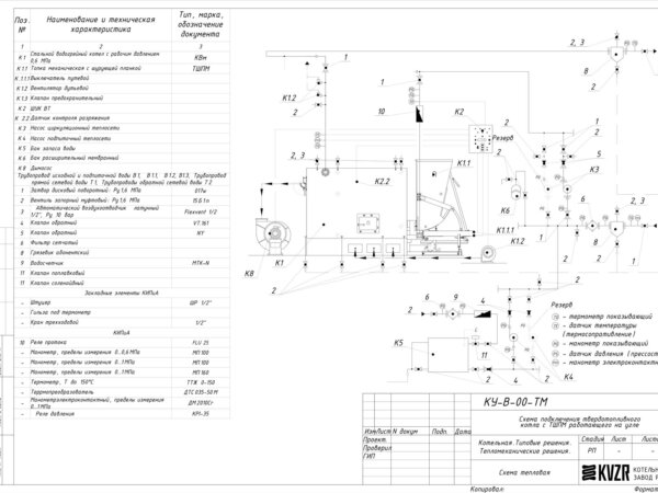
Тепловая схема

Схема тепловая {{parts_subject_r}}

Образец тепловой схемы подключения оборудования в механической котельной приведен на данной схеме. При эксплуатации очень важно грамотно осуществить подключение оборудования, установить все контрольно измерительные приборы, для контроля параметров работы котельной и запорную арматуру для оперативного переключения потока теплоносителя при плановой или аварийной остановке оборудования. Данную схему можно использовать как пример для разработки под свой объект или заказать у нас разработку индивидуальной схемы для вашей котельной.

Установка контрольно-измерительных приборов

Установка контрольно-измерительных и предохранительных приборов

При установке котла КВм 2.0 с ТШПМ на участке водоподводящего трубопровода после задвижки, непосредственно перед входом во входной и на выходном трубопроводах монтируются по одному манометру и термометру. На входе или выходе из котла устанавливается реле протока (устройство контроля расхода теплоносителя). Кроме того, на выходном трубопроводе устанавливаются не менее двух предохранительных клапанов - рабочий и резервный.

Все приборы, кроме реле протока входят в комплектацию котла. Реле протока входит в комплектацию щита управления данного котла, щит покупается отдельно.

Водогрейный котел КВм 2.0 с ТШПМ имеет гарантийный срок 24 месяца. Срок работы при соблюдении правил монтажа и эксплуатации оборудования 10 лет.

Водогрейные котлы сертификат
Сертификат на водогрейные котлы
Сертификат на водогрейные котлы на газе и жидком топливе
Сертификат на водогрейные котлы на газе и жидком топливе

Подберите мощность котла для вашего объекта

Тип здания
Регион
Населенный пункт
Наружный объем здания
3)
Отапливаемый подвал
Объем подвала
3)

Отзывы о продукции

Другая похожая продукция

КВм котел с ЗП РПК
Котел КВм 2.0 ЗП РПК
Максимальная тепловая мощность, МВт 2, 2.0
Топливо Твердое, Уголь
Вид топки ЗП РПК, Механическая
Отапливаемая площадь, м² от 14700 до 19000
2 400 000 ₽
Котел КВм 2.0 ТШПМ
Котел КВм 2.0 с ТШПМ
Максимальная тепловая мощность, МВт 2, 2.0
Топливо Твердое, Уголь
Вид топки ТШПМ, Механическая
Отапливаемая площадь, м² от 16700 до 21900
1 742 000 ₽
КВм котел 2.0 с ТЛПХ
Котел КВм 2.0 с ТЛПХ
Максимальная тепловая мощность, МВт 2
Топливо Твердое, Уголь
Вид топки ТЛПХ, Механическая
Отапливаемая площадь, м² от 16700 до 21900
6 700 000 ₽
КВр котел 2.0 МВт
Котел КВр 2.0
Максимальная тепловая мощность, МВт 2, 2.0
Топливо Твердое, Уголь
Вид топки Ручная, Колосники
Отапливаемая площадь, м² от 16700 до 21900
1 016 000 ₽
Котел КВм 1.5 ТШПМ
Котел КВм 1.5 с ТШПМ
Максимальная тепловая мощность, МВт 1.5
Топливо Твердое, Уголь
Вид топки ТШПМ, Механическая
Отапливаемая площадь, м² от 12500 до 16500
1 535 000 ₽
Котел КВм 2.5 МВт с топкой ТШПМ механический
Котел КВм 2.5 с ТШПМ
Максимальная тепловая мощность, МВт 2.5
Топливо Твердое, Уголь
Вид топки ТШПМ, Механическая
Отапливаемая площадь, м² от 20900 до 27400
1 988 000 ₽